U gebruikt een verouderde internetbrowser.
We raden u aan om de meest recente internetbrowser te installeren voor de beste weergave van deze website.
Een internetbrowser die up to date is, staat ook garant voor veilig surfen.
 

Helaas, dit pand is verhuurd

Hogedijkenstraat 2 , 8490 Jabbeke

Omschrijving

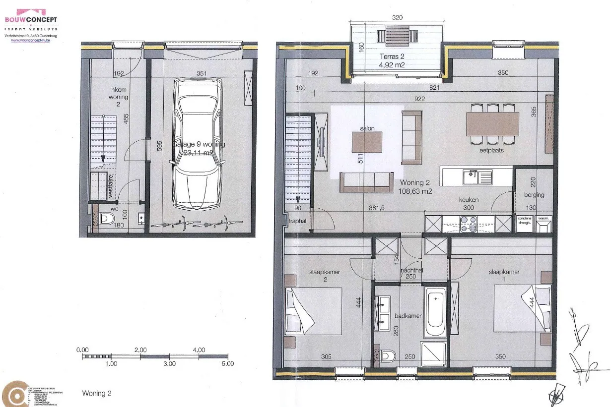
Nieuwbouwwoning met 2 slaapkamers

Deze super gezellige woning is gelegen nabij het centrum van Jabbeke en grote invalswegen (E40 en A10) en op een boogscheut van Brugge, Torhout en Gistel. De woning wordt samengesteld uit een inkomhal met toilet en garage op het gelijkvloers. Op de 1ste verdieping vinden we de ruime lichtrijke leefruimte met open geïnstalleerde keuken, ruim balkon, een volledig ingerichte badkamer met dubbel lavabomeubel, toilet en inloopdouche, tenslotte vinden we er 2 ruime slaapkamers terug. Neem snel contact op met ons kantoor om een bezoek in te plannen aan deze topper!


Niet gevonden wat u zocht? Schrijf u dan vrijblijvend in en blijf op de hoogte van ons recentste aanbod.
Schrijf u in
Vraag hier gratis jouw schatting*
aan twv €395 *enkel bij verkoop
Sluit menu Immo Dereeper