U gebruikt een verouderde internetbrowser.
We raden u aan om de meest recente internetbrowser te installeren voor de beste weergave van deze website.
Een internetbrowser die up to date is, staat ook garant voor veilig surfen.
 

Bruggesteenweg 263 02, 8830 Hooglede
Huurprijs: € 865

Omschrijving

Loods te huur op uitstekende locatie.

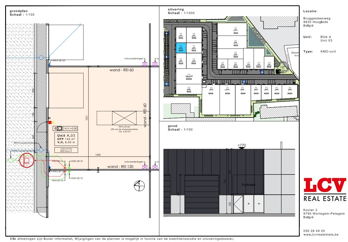
Deze loods is gelegen op een uitstekende en vlot bereikbare locatie langs de Bruggesteenweg te Hooglede. Het pand beschikt over 3 private parkeerplaatsen en is daardoor praktisch en toegankelijk. Met een vrije hoogte van ongeveer 6 meter biedt de loods de mogelijkheid om een verdiep of mezzanine te voorzien, wat extra opslag- of werkruimte creëert. Dankzij de goede ligging, oppervlakte van 144 vierkante meter en de flexibele indelingsmogelijkheden is deze loods ideaal voor diverse professionele activiteiten.
prijs is excl. btw.
Contacteer ons voor een bezoek.


Kenmerken

Algemeen

Adres:Bruggesteenweg 263/02
Hooglede
Referentie:Bruggesteenweg 263 bus 02 te Hooglede
Prijs:€ 865
Type:Opslagruimte
Beschikbaar vanaf:Onmiddellijk
Verhuurbare vloeroppervlakte:144 m²
Bouwhoogte:6 m

Comfort

Snelweg:Ja
Bushalte:Ja
Winkel:Ja
Kinderopvang:Ja
Ontspanning:Ja
Restaurant:Ja

Informatieplicht

Overstromingsgevoelig:Niet meegedeeld
Overstromingsgebied:Niet meegedeeld
Erfgoed:Niet meegedeeld

Ligging

Neem vrijblijvend contact op

Wenst u meer informatie of het pand te bezoeken? Contacteer ons vrijblijvend voor meer informatie. 
Wanneer wij uw aanvraag hebben ontvangen zullen wij verder contact met u opnemen. 


U moet akkoord gaan met het privacybeleid van deze website
* Verplicht in te vullen

Zoë Dezuttere

+32 50 69 52 51

zoe@immodereeper.be

Niet gevonden wat u zocht? Schrijf u dan vrijblijvend in en blijf op de hoogte van ons recentste aanbod.
Schrijf u in
Vraag hier gratis jouw schatting*
aan twv €395 *enkel bij verkoop
Sluit menu Immo Dereeper